Seinpoststraat 7
2586 GZ 'S-GRAVENHAGE
€ 615.000,- k.k.
Omschrijving
For English see belowSfeervol parterre appartement met voor- en achtertuin, kelder, vliering en drie slaapkamers – gelegen op eigen grond
Op zoek naar een karakteristiek en instap klaar appartement op een unieke plek in Scheveningen? Dit ruime parterre appartement biedt alles wat je nodig hebt: een zonnige voor- én achtertuin, een praktische kelder, een handige (tussen)vliering en een charmante opkamer. Een compleet huis dat direct veel wooncomfort biedt, ideaal voor gezinnen.
De buurt
De Seinpoststraat ligt in een rustig stukje van het authentieke Scheveningen. In de nabije omgeving vind je volop winkels en gezellige eetgelegenheden, onder meer in de Stevinstraat, Gentsestraat en Badhuisstraat. Voor sport en ontspanning zijn de Mets tennisbanen en Sportcentrum De Blinkerd dichtbij. Voor de allerjongsten tref je de kinderboerderij om de hoek en het Westbroekpark is op loopafstand. En natuurlijk wandel je binnen enkele minuten naar het strand – perfect voor een frisse ochtendduik of een lange zomeravond aan zee.
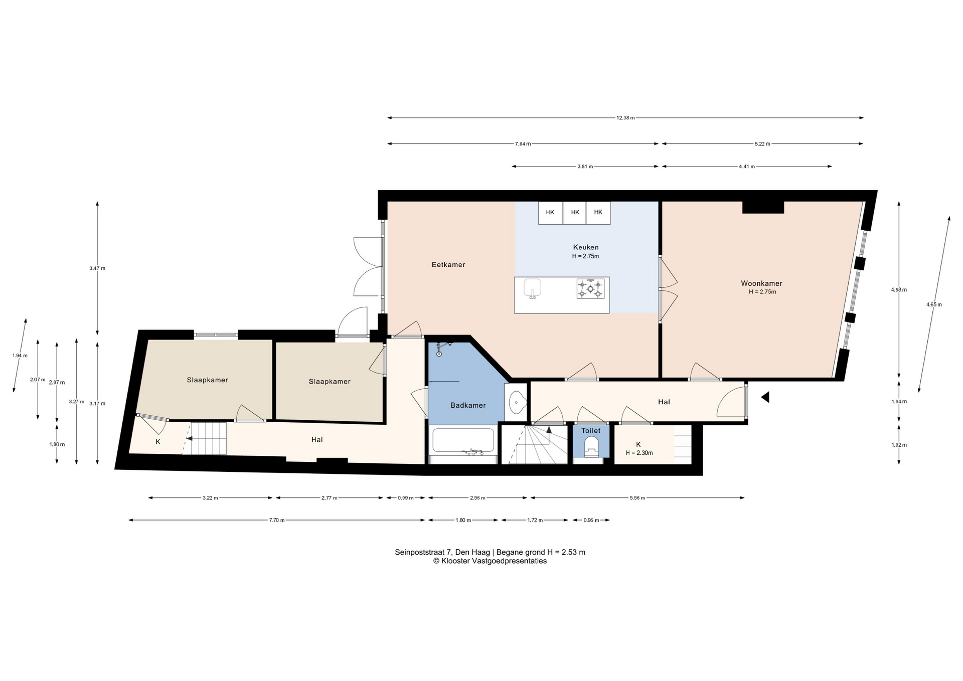
Indeling
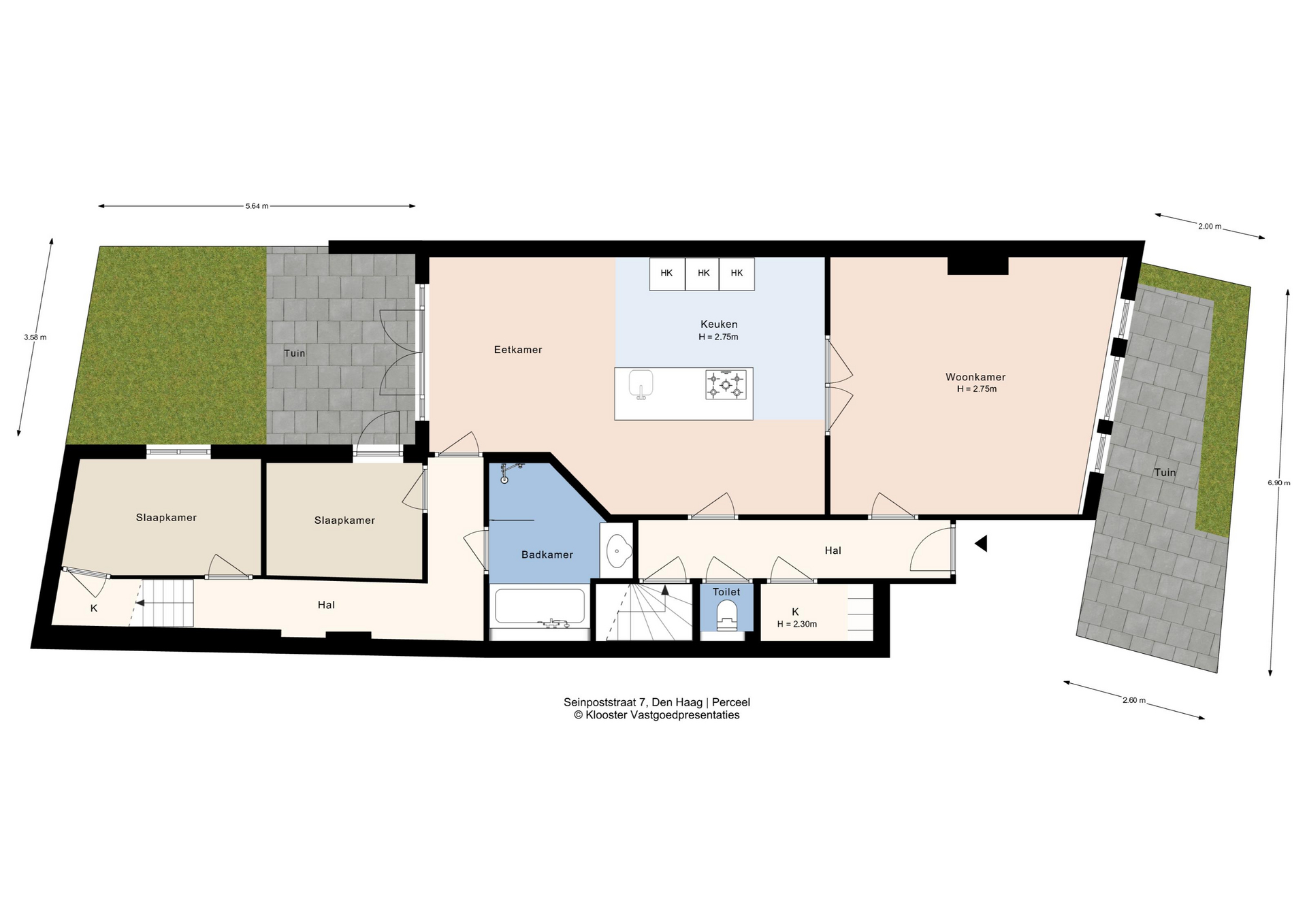
Entree via de eigen voortuin. Dit stukje tuin leent zich bij uitstek om de dag te beginnen onder het genot van een kopje koffie! De gezamenlijke hal (gedeeld met de bovenburen) geeft toegang tot de woning. De gang met een apart toilet en toegang tot de kelder leidt u naar de verschillende vertrekken.
De lichte woonkamer aan de voorzijde heeft grote raampartijen en uitzicht op de voortuin. De kamer-en-suite is met openslaande deuren verbonden met de eetkamer aan de achterzijde. Hier bevindt zich een royaal kookeiland met bar. Grenzend aan de eettafel stap je via de openslaande deuren de achtertuin (gelegen op het noorden) in. Met zowel een tuin aan de voor- en achterzijde van het appartement ben je in ieder geval verzekerd van een plek in de zon of in de schaduw op zomerse dagen!
Aan de achterzijde bevinden zich twee slaapkamers op de begane grond. De moderne badkamer is uitgerust met een ligbad, een separate inloopdouche, wastafelmeubel en tweede toilet. Via de doorloop en de trap bereik je de opkamer, alwaar de master-bedroom. Onder de woning bevindt zich een kelder van ca. 13 m², ideaal als berging, hobbyruimte of provisieruimte.
Kortom, een charmant en compleet appartement op een toplocatie in Scheveningen – perfect voor wie instap klaar wil wonen, met de luxe van een tuin én volop ruimte.
Bijzonderheden
• 107 m² woonoppervlak
• Voor- en achtertuin (tezamen ca. 30 m²)
• Gelegen op eigen grond
• Energielabel C
• (tussen)vliering aanwezig
• Kelder (13 m²)
• Cv-installatie Remeha Tzerra (2012, jaarlijks onderhouden)
• Beschermd stadsgezicht
• Volledige renovatie in 2012
• Drie slaapkamers
• Ruime badkamer met ligbad en inloopdouche
• Voorzien van HR++ en HR-glas
• Actieve VvE: bijdrage € 28,- p/m (reserve ca. € 6.000, -)
De gegeven informatie is met zorgvuldigheid opgesteld, aan de juistheid kunnen echter geen rechten worden ontleend. Alle verstrekte informatie moet beschouwd worden als een uitnodiging tot het doen van een aanbod of om in onderhandeling te treden.
**********************************************
Charming ground floor apartment with front and back garden, cellar, loft space and three bedrooms – freehold property
Looking for a characteristic, move-in-ready apartment in a unique location in Scheveningen? This spacious ground floor apartment has it all: a sunny front and back garden, a practical cellar, a convenient loft space, and a charming mezzanine room. A complete home that offers immediate comfort – ideal for families.
The neighborhood
The Seinpoststraat is located in a quiet part of authentic Scheveningen. In the immediate vicinity you will find a wide range of shops and cozy restaurants, including those in the Stevinstraat, Gentsestraat and Badhuisstraat. Sports enthusiasts can enjoy the nearby Mets tennis courts and Sportcentrum De Blinkerd. For the youngest residents, there is a petting zoo just around the corner, and Westbroekpark is within walking distance. And of course, the beach is just a few minutes’ walk away – perfect for a refreshing morning swim or a long summer evening by the sea.
Layout
Entrance through the private front garden – the perfect spot to start your day with a cup of coffee! The shared hallway (with the upstairs neighbors) provides access to the apartment. The corridor, with a separate toilet and access to the cellar, leads you to the various rooms.
The bright living room at the front features large windows with views over the front garden. The en-suite living and dining rooms are connected by French doors. At the rear, you’ll find the spacious dining area with a large kitchen island and bar. From here, double doors open onto the north-facing back garden. With both a front and back garden, you are guaranteed a place in the sun or in the shade on warm summer days.
At the rear of the property are two bedrooms on the ground floor. The modern bathroom is equipped with a bathtub, separate walk-in shower, washbasin unit and a second toilet. Via the connecting hall and stairs, you reach the mezzanine level, where the master bedroom is located. Beneath the property lies a cellar of approx. 13 m², ideal for storage, hobbies, or as a pantry.
In short: a charming and complete apartment in a prime location in Scheveningen – perfect for anyone looking for a move-in-ready home, with the added luxury of a garden and plenty of space.
Features:
- 107 m² living space
- Front and back garden (together approx. 30 m²)
- Freehold property
- Energy label C
- Loft space (intermediate level)
- Cellar (13 m²)
- Central heating system Remeha Tzerra (2012, serviced annually)
- Located within a protected cityscape
- Fully renovated in 2012
- Three bedrooms
- Spacious bathroom with bathtub and walk-in shower
- Double glazing (HR++ and HR glass)
- Active homeowners’ association (VvE): contribution €28 per month (reserve approx. €6,000)
The information provided has been compiled with care. However, no rights can be derived from its accuracy. All information should be regarded as an invitation to make an offer or to enter into negotiations.
Kenmerken
Overdracht
Prijs
€ 615.000,- k.k.
Aangeboden sinds
09-07-2025
Status
Verkocht
Aanvaarding
In overleg
Bouw
Soort appartement
Benedenwoning
Soort bouw
Bestaande bouw
Bouwjaar
1900
Soort dak
Plat dak
Oppervlakten en inhoud
Wonen
107 m²
Gebouwgebonden buitenruimte
13 m²
Perceel
132 m²
Inhoud
435 m³
Indeling
Aantal kamers
5
Aantal slaapkamers
3
Aantal woonlagen
2
Voorzieningen
- Tv kabel
- Natuurlijke ventilatie
Energie
Energielabel
C
Isolatie
Dakisolatie, muurisolatie, vloerisolatie, dubbel glas
Warm water
Cv ketel
Cv-ketel
Remeha tzerra
Kadastrale gegevens
Oppervlakte
132
Buitenruimte
Ligging
In woonwijk
Tuin
Achtertuin, voortuin
Ligging tuin
Noord
Garage
Soort garage
Geen garage
Parkeergelegenheid
Parkeergelegenheid
Openbaar parkeren, betaald parkeren, parkeervergunningen



