Jules Massenetstraat 186

2551 XG 'S-GRAVENHAGE

€ 375.000,- k.k.

Omschrijving

For English see below

In de gezellige en groene wijk Waldeck gelegen 4-kamermaisonnette op de begane grond en 1e etage met ruime tuin met achterom, eigen fietsenberging op de begane grond en parkeerplaats in afgesloten parkeergarage. Het strand van Kijkduin en de recreatiegebieden Madestein, De Uithof en Ockenburgh zijn goed bereikbaar, zowel met de auto als fiets. De winkels aan De Savornin Lohmanplein liggen op loopafstand. Sportfaciliteiten en scholen vindt u in de directe omgeving. Aansluitingen met het openbaar vervoer vindt u om de hoek, net als uitvalswegen naar de rest van Nederland.

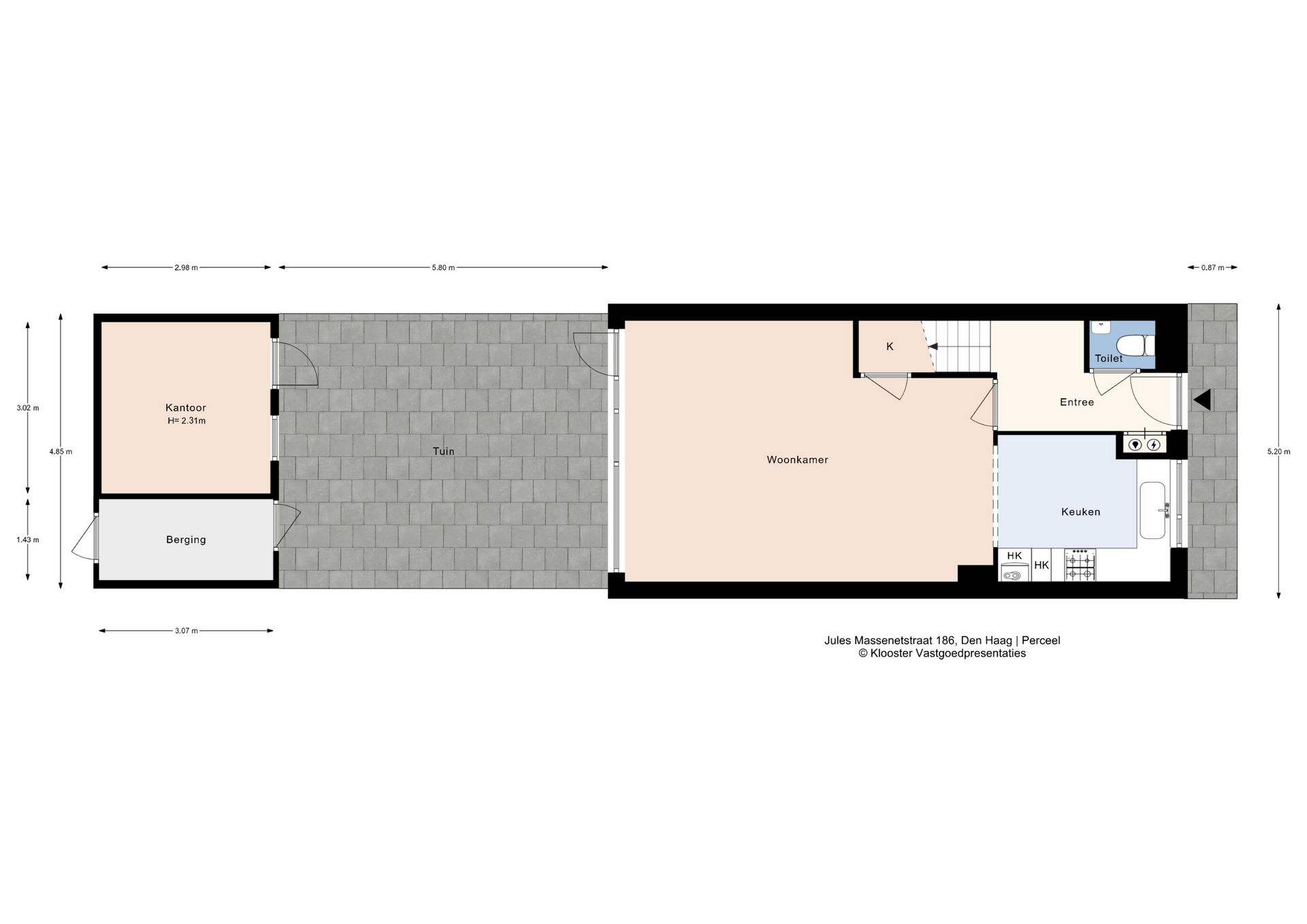
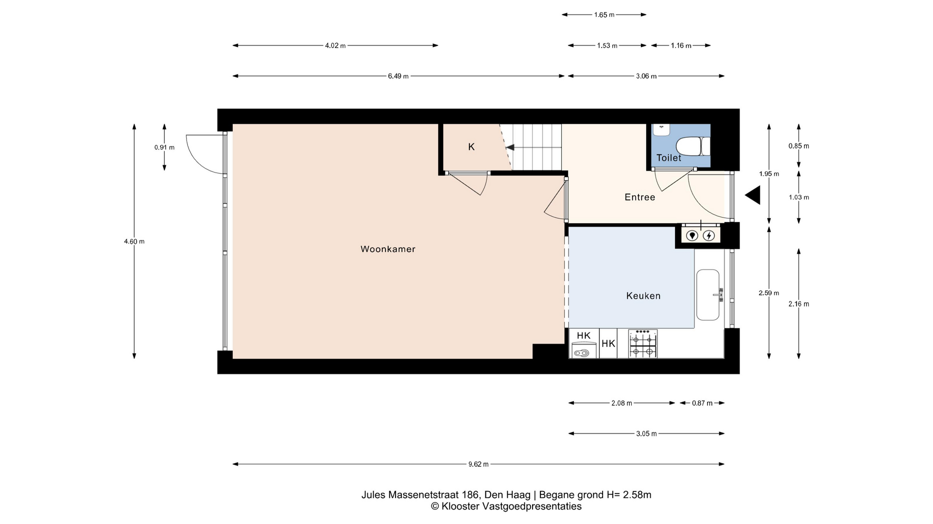
Begane grond
Via de entree betreedt u de hal met meterkast, toilet en trapopgang naar de eerste verdieping. Aan de voorzijde bevindt zich de open keuken. De ruime woonkamer aan de achterzijde is prettig licht en biedt directe toegang tot de achtertuin, gelegen op het noordoosten. De tuin beschikt over een achterom en een tuinhuis, ideaal voor opbergen van (tuin)spullen. Momenteel is deze ruimte ingericht als een comfortabele game room. Daarnaast is er ook nog een afzonderlijke berging in het gebouw voor het bijvoorbeeld stallen van fietsen.

Slaapverdieping
Op de eerste verdieping komt u op de overloop die toegang geeft tot drie slaapkamers. De ruime hoofdslaapkamer is gelegen aan de voorzijde van de woning, terwijl de twee overige slaapkamers zich aan de achterzijde bevinden. De badkamer is functioneel ingericht en voorzien van een douche, wastafel, toilet en een aansluiting voor de wasmachine.

Bijzonderheden:
- Bouwjaar:1981;
- Woonoppervlakte ca 98m2;
- Achtertuin met tuinhuis en een achterom;
- Energielabel B;
- Actieve VvE, bijdrage ca. € 190, - per maand;
- MeerJarenOnderhoudsPlan aanwezig;
- Gelegen op erfpachtgrond; canon en beheerkosten zijn eeuwigdurend afgekocht;
- CV installatie Remeha Calenta bouwjaar 2016 (jaarlijks onderhouden);
- Inclusief eigen parkeerplaats in de parkeergarage aan de Jules Massenetstraat 216;
- Afzonderlijke berging op de begane grond;
- Ouderdoms- en asbestclausule worden standaard opgenomen in de koopakte;
- Oplevering in overleg.

Kortom: een ruime en comfortabel ingedeelde maisonnette met een fijne tuin en een eigen parkeerplaats in een nabijgelegen parkeergarage, gelegen op een aantrekkelijke locatie.

Bent u geïnteresseerd? Neem dan contact met ons op voor een bezichtiging. Wij laten u deze woning graag persoonlijk zien.

De verstrekte informatie is met zorg samengesteld, echter kunnen hieraan geen rechten worden ontleend. Alle informatie dient te worden beschouwd als een uitnodiging tot het doen van een aanbod of het starten van onderhandelingen.
*******************************************************************************************************
Located in the pleasant and green Waldeck neighborhood, this 4-room maisonette is situated on the ground floor and first floor, featuring a spacious backyard with rear access, a private bicycle storage on the ground floor and a private parking space in a secured parking garage.
The beach of Kijkduin and the recreational areas of Madestein, De Uithof, and Ockenburgh are easily accessible, both by car and by bicycle. Shops at De Savornin Lohmanplein are within walking distance. Sports facilities and schools can be found in the immediate vicinity. Public transport connections are just around the corner, as are major roads leading to the rest of the Netherlands.

Ground floor
Upon entering, you step into the hallway with a meter cupboard, toilet, and staircase leading to the first floor. The open kitchen is located at the front of the property. The spacious living room at the rear is pleasantly bright and provides direct access to the northeast-facing backyard. The garden features a rear entrance and a garden shed, ideal for storing (garden) items. This space is currently set up as a comfortable game room. In addition, there is a separate storage room in the building, for example for bicycles.

Sleeping floor
On the first floor, the landing provides access to three bedrooms. The spacious master bedroom is located at the front of the property, while the other two bedrooms are situated at the rear. The bathroom is functionally designed and equipped with a shower, washbasin, toilet, and a connection for a washing machine.

Key features:
• Year of construction: 1981
• Living area approx. 98 m²
• Backyard with garden shed and rear access
• Energy label B
• Active homeowners’ association (VvE), contribution approx. €190 per month
• Long-term maintenance plan available
• Situated on leasehold land; ground rent and management costs have been bought off in perpetuity
• Central heating system (Remeha Calenta, built in 2016, annually maintained)
• Includes a private parking space in the parking garage at Jules Massenetstraat 216
• Separate storage room on the ground floor
• Age and asbestos clauses will be included as standard in the purchase agreement
• Delivery in consultation

In short: a spacious and comfortably laid-out maisonette with a pleasant garden and a private parking space in a nearby parking garage, located in an attractive area.

Interested? Please contact us to schedule a viewing. We would be happy to show you this property in person.

The information provided has been compiled with care; however, no rights can be derived from it. All information should be regarded as an invitation to make an offer or to enter into negotiations.

Kenmerken

Overdracht

Prijs

€ 375.000,- k.k.

Aangeboden sinds

26-02-2026

Status

Onder bod

Aanvaarding

In overleg

Bouw

Soort appartement

Maisonnette

Soort bouw

Bestaande bouw

Bouwjaar

1981

Soort dak

Plat dak

Oppervlakten en inhoud

Wonen

98 m²

Externe bergruimte

24 m²

Perceel

13797 m²

Inhoud

300 m³

Indeling

Aantal kamers

4

Aantal slaapkamers

3

Aantal woonlagen

2

Voorzieningen

  • Mechanische ventilatie
  • Tv kabel

Energie

Energielabel

B

Isolatie

Muurisolatie, vloerisolatie, dubbel glas

Warm water

Cv ketel

Cv-ketel

Remeha

Kadastrale gegevens

Oppervlakte

13797

Buitenruimte

Tuin

Achtertuin

Ligging tuin

Noordoost

Bergruimte

Schuur/berging voorzieningen

Voorzien van elektra

Garage

Soort garage

Parkeerplaats

Parkeergelegenheid

Parkeergelegenheid

Openbaar parkeren, parkeergarage, op afgesloten terrein