Gerrit van der Veenlaan 121
2552 WG 'S-GRAVENHAGE
€ 317.500,- k.k.
Omschrijving
For English see belowRuim en licht vierkamerappartement op de eerste etage met vrij uitzicht in het groene Houtwijk
In een rustige straat met brede groenstrook in de kindvriendelijke wijk Houtwijk ligt dit licht en verzorgd 4-kamerappartement met balkon en aparte fietsenberging op de begane grond. De woning is gelegen op de eerste etage van een kleinschalig en verzorgd complex en heeft een vrij uitzicht over het groen, waardoor u hier rustig en prettig woont.
De ligging is bijzonder gunstig: op korte afstand van winkelcentrum Houtwijk, diverse scholen, sportverenigingen en openbaar vervoer. Ook de uitvalswegen richting A4 en A13 zijn vlot bereikbaar. Binnen een kwartier fietsen staat u bovendien op het strand van Kijkduin.
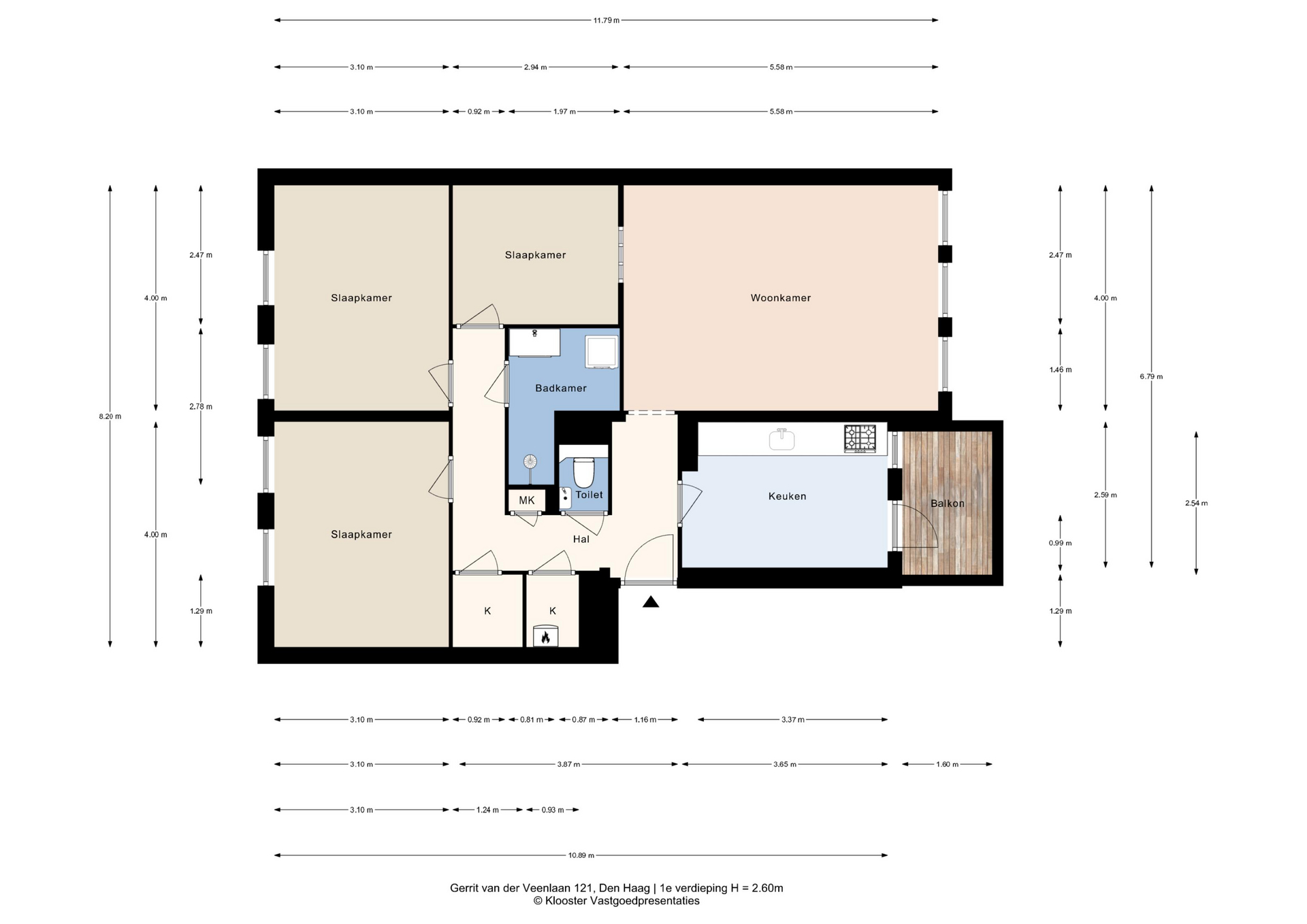
Indeling
Begane grond:
Gemeenschappelijke entree via open portiek. Op de begane grond bevindt zich een handige (fietsen)berging.
Eerste verdieping:
Entree woning. Centrale hal met toegang tot alle vertrekken. Moderne toiletruimte met fonteintje. De lichte en ruim opgezette woonkamer is aan de voorzijde gesitueerd en biedt vrij uitzicht op de groenstrook. De ruimte is keurig afgewerkt. De moderne keuken is aan de achterzijde gelegen, voorzien van diverse inbouwapparatuur en geeft toegang tot het zonnige balkon.
Aan de achterzijde bevinden zich twee ruime slaapkamers en een kleiner formaat slaapkamer, allen voorzien van een nette laminaatvloer.
De fraaie badkamer is uitgevoerd met een inloopdouche, wastafelmeubel en aansluiting voor de wasmachine.
Bijzonderheden
- Woonoppervlakte ca. 85 m²
- Balkon (gebouwgebonden buitenruimte) ca. 4 m²
- Aparte (fietsen)berging op de begane grond ca. 6 m²
- Verwarming en warm water via cv-combiketel (eigendom, 2019)
- Geheel voorzien van dubbel glas
- Actieve en gezonde VvE, maandelijkse bijdrage: € 128,36
- Energielabel C
- Gelegen op eeuwigdurend afgekochte erfpachtgrond
- Bouwjaar ca. 1984
Bent u op zoek naar een keurig onderhouden appartement op een fijne locatie met vrij uitzicht en goede voorzieningen in de buurt? Maak dan snel een afspraak voor een bezichtiging – wij laten het u graag zien!
De verstrekte informatie is met zorg samengesteld, maar er kunnen geen rechten aan worden ontleend. Alle informatie dient te worden beschouwd als een uitnodiging tot het doen van een bod of het starten van onderhandelingen.
*********************************************************
Spacious and bright four-room apartment on the first floor with unobstructed views in green Houtwijk.
Located on a quiet street with a wide green strip in the family-friendly Houtwijk neighborhood, this bright and well-maintained 4-room apartment features a balcony and a separate bicycle storage on the ground floor. Situated on the first floor of a small-scale, well-kept complex, the property offers open views of the surrounding greenery, providing a peaceful and pleasant living environment.
The location is particularly favorable: just a short distance from Houtwijk Shopping Center, various schools, sports facilities, and public transport. Major highways (A4 and A13) are easily accessible, and the beach of Kijkduin is only a 15-minute bike ride away.
Layout
Ground floor:
Communal entrance via open stairwell. A private bicycle storage unit is located on the ground floor.
First floor:
Entrance to the apartment. Central hallway providing access to all rooms. Modern guest toilet with hand basin.
The bright and spacious living room is located at the front and offers open views of the green strip. The space is neatly finished.
At the rear is the modern kitchen, equipped with various built-in appliances and access to the sunny balcony.
At the rear, you’ll find two generously sized bedrooms and a smaller third bedroom, all featuring a clean laminate floor.
The contemporary bathroom is fitted with a walk-in shower, washbasin with vanity unit, and washing machine connection.
Features
- Living area approx. 85 m²
- Balcony (attached outdoor space) approx. 4 m²
- Separate bicycle storage on the ground floor approx. 6 m²
- Heating and hot water via central heating combi boiler (owned, 2019)
- Fully equipped with double glazing
- Active and financially healthy Homeowners’ Association (VvE), monthly contribution: € 128,36
- Energylabel C
- Located on perpetually bought-off leasehold land
- Year of construction: approx. 1984
Are you looking for a well-maintained apartment in a pleasant location with open views and excellent amenities nearby? Don’t hesitate to schedule a viewing – we’d be happy to show you around!
The information provided has been compiled with care, but no rights can be derived from its contents. All details should be regarded as an invitation to place a bid or to enter into negotiations.
Kenmerken
Overdracht
Prijs
€ 317.500,- k.k.
Aangeboden sinds
22-05-2025
Status
Verkocht
Aanvaarding
In overleg
Bouw
Soort appartement
Portiekwoning
Soort bouw
Bestaande bouw
Bouwjaar
1983
Soort dak
Plat dak
Oppervlakten en inhoud
Wonen
85 m²
Inhoud
275 m³
Indeling
Aantal kamers
4
Aantal slaapkamers
3
Aantal woonlagen
1
Voorzieningen
- Tv kabel
- Natuurlijke ventilatie
Energie
Energielabel
C
Isolatie
Dubbel glas
Warm water
Cv ketel
Buitenruimte
Ligging
In woonwijk
Tuin
Geen tuin
Bergruimte
Schuur/berging
Inpandig
Schuur/berging voorzieningen
Voorzien van elektra
Garage
Soort garage
Geen garage
Parkeergelegenheid
Parkeergelegenheid
Openbaar parkeren, betaald parkeren, parkeervergunningen



